布鲁姆斯伯里办公室
致电 020 7113 1066
4 Bedroom Apartment, Belmont Street, London, Greater London, NW1
待售
£7,500,000
4 个卧室
4 个浴室
特点
- Iconic Chappell Piano Factory conversion with striking industrial architecture
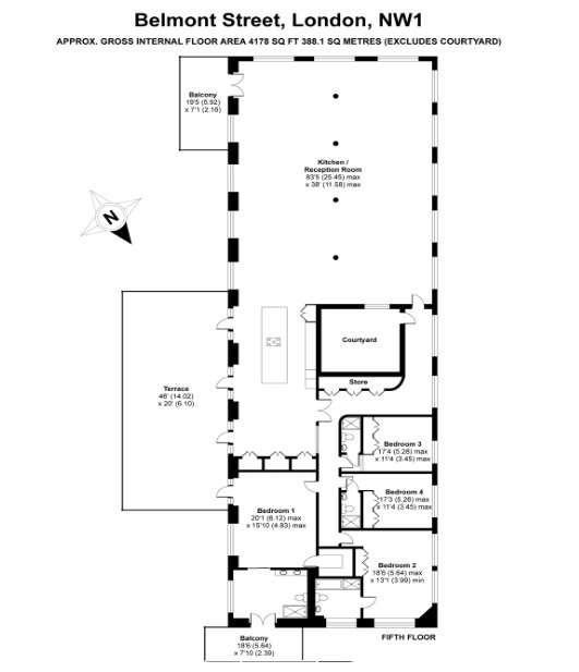
- Expansive 4,045 sqft of luxury living space across the 5th floor
- Four bedrooms and four ensuite bathrooms plus additional guest shower room
- Spectacular open-plan living area with exposed brickwork and floor-to-ceiling windows
- Large private terrace plus additional balcony with panoramic views
- Bespoke Italian Scavolini kitchen with Bora and Miele integrated appliances
- Prime Camden location – just 2 minutes from Camden Market and 10 minutes to Regent’s Park
+16
关于该物业
平面图
大伦敦物业介绍
A stunning four-bedroom, four-bathroom loft-style apartment in the iconic Chappell Piano Factory, offering over 4,000 sqft of luxurious living space, exceptional design, and private terraces just moments from Camden Market, Primrose Hill, and Regent’s Park.
物业
Occupying the fifth floor of the iconic Chappell Loft, a beautifully converted former Chappell Pianos piano factory, this exceptional apartment delivers striking Manhattan-style living in one of NW1’s most vibrant and well-connected locations.
The apartment is flooded with natural light and enjoys far-reaching views, with an expansive living room framed by double oversized windows and characterful exposed brickwork, perfectly capturing the building’s industrial heritage. The living space opens onto a generous private terrace of approximately 298 sq ft, complemented by an additional balcony off the reception room — ideal for entertaining or relaxed outdoor living.
At the heart of the home is a custom-designed Italian Scavolini kitchen, complete with Bora and Miele integrated appliances, seamlessly blending high-end design with everyday functionality.
The property offers four spacious bedrooms and four bathrooms/ensuites, arranged to maximise privacy and comfort. The impressive principal bedroom suite features a large fitted walk-in wardrobe, a luxurious ensuite bathroom and direct access to the terrace. Bathrooms are finished to an exceptional standard with Duravit Philippe Starck suites, walk-in showers, Waterworks taps, Devon & Devon freestanding bathtubs and underfloor heating throughout. A separate guest WC/shower room further enhances practicality.
Residents also benefit from exclusive access to The Club Lounge, a standout feature of the building. Spanning approximately 2,000 sq ft, this private VIP entertainment space includes a bespoke cocktail bar, DJ booth and a state-of-the-art media, sound and lighting system — perfect for hosting, socialising or private relaxation.
地点和交通
Ideally positioned for central London and the West End, the apartment sits moments from the energy and culture of Camden Market, just a two-minute walk away. Camden and Primrose Hill are both within five minutes on foot, while Regent’s Park can be reached in under ten minutes.
The apartment is adjacent to the shops, restaurants and nightlife of Camden High Street and Chalk Farm Road, with Sainsbury’s and Tesco supermarkets just around the corner for everyday convenience.
Transport connections are excellent, with Chalk Farm tube station and Camden Town tube station (Northern Line) both within easy walking distance, Kentish Town West station approximately 15 minutes away, and numerous bus routes running from Camden Town and Chalk Farm Road.
行程计划
按揭计算器
印花税计算器
计算还款额
使用我们的直观工具轻松计算您的抵押贷款,快速了解您的财务规划。如需进一步指导,我们值得信赖的合作伙伴随时准备根据您的需求提供专业建议。
计算还款额
使用我们的直观工具轻松计算您的抵押贷款,快速了解您的财务规划。如需进一步指导,我们值得信赖的合作伙伴随时准备根据您的需求提供专业建议。
4 Bedroom Apartment, Belmont Street, London, Greater London, NW1















