布鲁姆斯伯里办公室
致电 020 7113 1066
1 Bedroom Apartment, Ridgmount Street, Bloomsbury, WC1E
出租
每晚 575 英镑
每平方米 2,492 英镑
1 个卧室
1 个浴室
特点
- 单卧室公寓
- 地面层
- 带家具
- Accessible to Local Amenities
- Modern Open Plan
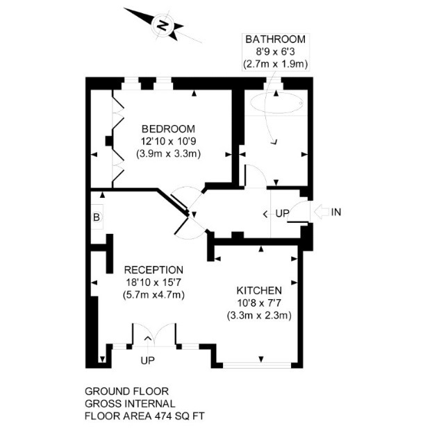
- 474 Sq. Feet
+8
关于该物业
平面图
概述:
The modern apartment is accessed at ground level via secure fob entry system and offers 474 Sq. Ft. of living space. The property features a west facing reception room with a recessed but open plan kitchen/dining space which is concluded with a small Juliette balcony space. The main bedroom hosts inbuilt large double wardrobes and the apartment is concluded via a fair sized tiled bathroom suite with bath and showerhead. Furthermore, the property is offered furnished and ready to move-in.
地点:
Ridgmount Street runs from Chenies Street in the north to Store Street in the south. It runs parallel with Gower Street and Alfred Place. Ridgmount Place joins Ridgmount Street on its western side.
Formally the site of the Bloomsbury Service Station, a former Art Deco station dating back to the early 19th century, the location was redeveloped to host a cluster of residential apartments and commercial residences. At number 22 Chenies Street, on the north western corner of Ridgmount Street, once stood the Medical Graduates' College and Polyclinic. It has since been replaced by Nicholas Cooper House, owned by the Royal Academy of Dramatic Art. The Polyclinic was the first British postgraduate medical institution.
The location is accessible to a number of Bloomsbury educational and medical institutes as well as offering walking access to London's West End district with all its trendy restaurants and shopping streets.
运输:
Ridgmount Street is serviced via Goodge Street, Russell Square and Tottenham court Road London Underground Lines for access to Northern, Piccadilly and Central Lines. Kings Cross and St Pancras International for mainline and Eurostar Services is also within walking distance.
Please note that the photographs used in this listing are for illustrative purposes only and may depict AI Staging, or an earlier state of the property. Prospective tenants are strongly advised to view the property in person or request an up-to-date video before making any decisions.
行程计划
当地
丰富多彩是生活的调味剂,而这正是生活在布鲁姆斯伯里的令人兴奋之处--总能体验到新的东西。 布鲁姆斯伯里地区指南
了解更多
1 Bedroom Apartment, Ridgmount Street, Bloomsbury, WC1E















